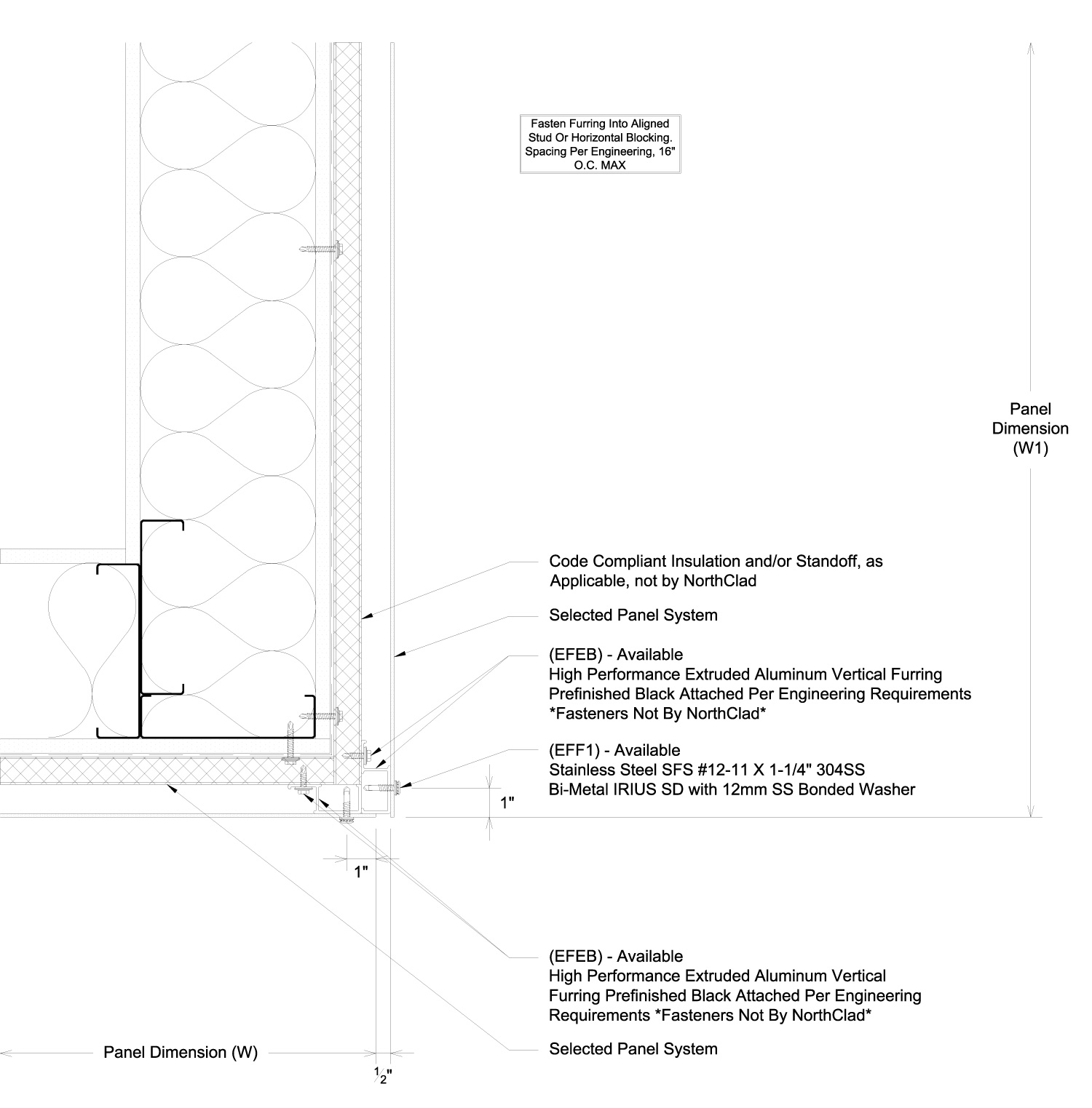
EXPOSED FASTENER DETAILS OUTBORD INSULATION Exposed Fastener Series Product Brochure Product Details No Insulation With Insulation Specification Guide ASTM Testing Data ASTM Organic Panels 4mm ACM Panels .125 Aluminum Panels Installation Guide LEED® Credit Parts Catalog Concealed Fastener Series Product Brochure Product Details No Insulation With Insulation Specification Guide Colors & Materials Color Options Stonewood™ Colors Material Options Fastener Series Gallery Exposed Fastener Series Product Brochure Product Details No Insulation With Insulation Specification Guide ASTM Testing Data ASTM Organic Panels 4mm ACM Panels .125 Aluminum Panels Installation Guide LEED® Credit Parts Catalog Concealed Fastener Series Product Brochure Product Details No Insulation With Insulation Specification Guide Colors & Materials Color Options Stonewood™ Colors Material Options Fastener Series Gallery N H H K T J1 R1 L S1 J2 R2 C A D B G J3 E S2 R3 M Click on the blue dots on the map to scroll down to the descriptions below to get a close up of each area shown on the map. Or, download the entire package details right here: FULL PACKAGE DETAILS - PDF A - Horizontal Joint VIEW PDF B - Vertical Joint VIEW PDF C - Vertical Fastener VIEW PDF D - Base of Wall VIEW PDF E - Coping VIEW PDF F - Soffit Fascia by Others VIEW PDF G - Outside Corner VIEW PDF H - Inside Corner VIEW PDF J1 - Framed Opening Door Header VIEW PDF J2 - Framed Opening Window Header VIEW PDF J3 - Framed Opening Louver Header VIEW PDF K - Fascia to Soffit VIEW PDF L - Wall to Soffit w/Vent VIEW PDF M - Inside Corner Termination VIEW PDF N - Termination to Adjacent Materials VIEW PDF P - Soffit to Wall by Others VIEW PDF Q - Fascia to Soffit by Others VIEW PDF R1 - Framed Opening Jamb VIEW PDF R2 - Framed Opening Window Jamb VIEW PDF R3 - Framed Opening Louver Jamb VIEW PDF S1 - Framed Opening Window Sill VIEW PDF S2 - Framed Opening Louver Sill VIEW PDF T - Inside Corner to Jamb VIEW PDF U - Soffit to Window Header VIEW PDF V - Wall to Soffit by Others VIEW PDF W - Outside Corner to System by Others VIEW PDF